영어
설명
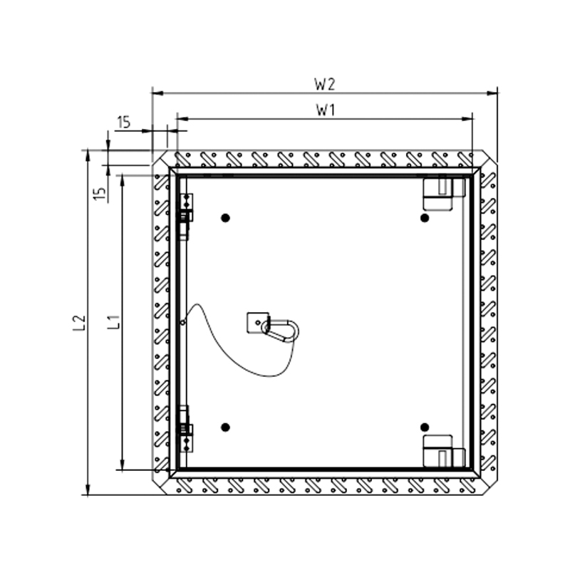
1. 벽면 적용을 위한 점검판.
2. 8mm 아연 도금 강철 프레임과 뚜껑.
3. 백색 분말 코팅 마감 또는 특수 색상을 사용할 수 있습니다.
4. 높은 내구성과 부식 방지.
5. 유지 보수를 위해 설치 및 개방이 쉽습니다.
6. 고정 나사 대신 4개의 자석; 장착 지점은 13mm와 15mm의 두 가지 두께 옵션을 지원합니다.
7. 잠금 디자인이 없습니다. 표면에 평평하게 놓여 있습니다.
8. 표준 크기: 10×10인치, 12×12인치, 16×16인치.
9. 사용자 정의 크기를 사용할 수 있습니다.
10. 포장: 각 제품을 수축 포장이 된 폴리 백에 넣은 다음 상자에 포장합니다.















